HILFREICH

Betreuen, Helfen und Arbeiten

Bildergalerie

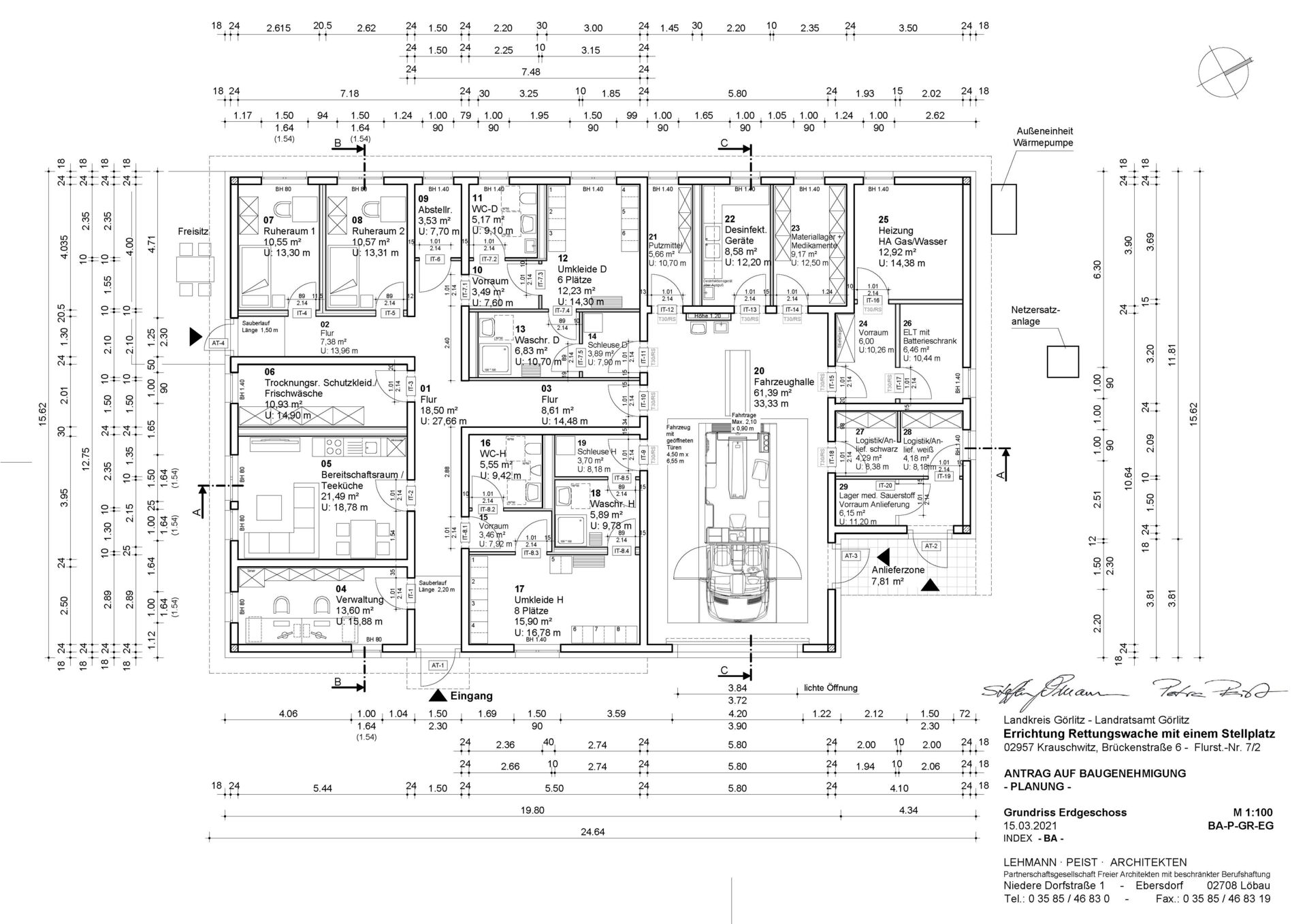
Errichtung Rettungswache Krauschwitz
Errichtung Rettungswache Krauschwitz
Grundrissplan
Grundrissplan

Errichtung Rettungswache Krauschwitz

  • Vorhabenträger: Landkreis Görlitz – Landratsamt, Begleitung Amt für Hoch- und Tiefbau
  • Errichtung Rettungswache mit einem RTW-Stellplatz einschl. Freiraumgestaltung
  • Leistungsphasen: 1-9
Werkstatt für behinderte Menschen - Herrnhut
Werkstatt für behinderte Menschen - Herrnhut
Eingang
Eingang
Eingang
Eingang
Innen
Innen
Essen
Essen
Bewegung
Bewegung
Töpferwerkstatt
Töpferwerkstatt
Meisterkabine
Meisterkabine
Rohr
Rohr

Werkstatt für behinderte Menschen - Herrnhut

  • Vorhabenträger und Betreiber: Diakoniewerk Oberlausitz e.V.
  • Errichtung Werkstatt für behinderte Menschen Herrnhut – 120 Plätze
  • Werkstatt mit Verteilerküche - Gesamt 120 Plätze
    • Aufteilung:     
      • Werkstatt für behinderte Menschen 90 Plätze
      • Werkstatt für chronisch Kranke, seelisch behinderte Menschen 30 Plätze
  • Errichtung als ebenerdiger eingeschossiger Neubau-Gebäudekomplex, mit Geländeregulierung - NGF gesamt: 2.596,66 m2
  • Einordnung 6 Hauptwerkstattbereiche mit zugeordneten Trainingsraumbereichen
  • Funktionen: Allgemeine Montage und Spezialbereiche für Keramik und Druck; dazu: Verteilerküche, 2 Speiseräume, Hochregallager, Verkaufsraum, Garderoben, Sanitärbereiche, Ergänzungsfunktionen
  • Leistungsphasen: 1 - 9
Begegnungsstätte „Fuchsgarten“ - Großhennersdorf
Begegnungsstätte „Fuchsgarten“ - Großhennersdorf
Rampe Eingang
Rampe Eingang
Rampe Eingang
Rampe Eingang
Fassade Farbe
Fassade Farbe
Rückfront
Rückfront
Fenster
Fenster

Begegnungsstätte „Fuchsgarten“ - Großhennersdorf

  • Vorhabenträger und Betreiber: Diakoniewerk Oberlausitz e.V. • Leistungsphasen: 2-8
  • Neubau, Erweiterung, Sanierung – Sozialgebäude, Aufenthaltsgebäude, Bungalowunterkünfte
  • eingeschossiger Gebäudekomplex mit 6 separaten Gebäuden
    • 4 Einzelbungalow in Holztafelbauweise - Sanierung
    • Neuerrichtung Sozialgebäude mit zwei Doppelzimmern und zentralen behindertengerechten Sanitärbereichen
  • Ausführung als Holzrahmen-Ständerbau – NGF gesamt: 144,41 m2
    • Neuerrichtung Aufenthaltsgebäude
  • Ausführung als Holzrahmen-Ständerbau – NGF gesamt: 65,00 m2

Projektübersicht

Betreuen, Helfen und Arbeiten

Werkstatt für behinderte Menschen Herrnhut – 120 Plätze

  • Vorhabenträger und Betreiber: Diakoniewerk Oberlausitz e.V.
  • Werkstatt mit Verteilerküche - Gesamt 120 Plätze Aufteilung: Werkstatt für behinderte Menschen 90 Plätze, Werkstatt für chronisch Kranke & seelisch behinderte Menschen 30 Plätze
  • Leistungsphasen: 1 - 9

Begegnungsstätte „Fuchsgarten“ - Großhennersdorf

  • Vorhabenträger und Betreiber: Diakoniewerk Oberlausitz e.V.
  • Neubau, Erweiterung, Sanierung – Sozialgebäude, Aufenthaltsgebäude, Bungalowunterkünfte
  • Leistungsphasen: 2-8

Rettungswache Krauschwitz

  • Vorhabenträger: Landkreis Görlitz
  • Begleitung: Landratsamt - Amt für Hoch- und Tiefbau
  • Errichtung Rettungswache für ein Einsatzfahrzeug mit allen erforderlichen Funktions- und Raumbereichen
  • Leistungsphasen: 1-9

zur Bildergalerie